-
傳統常規蒸化機
一代常規款蒸化機1879/1889/1899
數碼專用蒸化機
二代數碼蒸化機 1688
三代數碼蒸化機1778/1788
80米容布量新型數碼蒸化整機1588
水洗機系列
半松式繩狀水洗機928
全松式連續水洗機999
配件系列
配件系列
BF1778型智能蒸化一體機(設備專利已全覆蓋,仿制必究)
本機的特點與優勢(即傳統蒸化機無法達到的功能)
1、充分滿足了數碼印花的防沾色特點;即可數碼印花蒸化,又可傳統印花蒸化;
2、容布量大并且對機器功率及傳動承載無影響,掛布桿循環與掛布桿平移均為獨立傳動,長期運行故障率幾乎為零;
3、容布量可150m、250m、350m、450m、最高至550m,特別針對酸性蒸化工藝,產量翻番;設備投資減少、一臺本機可頂替二臺常規蒸化機;
4、針對特別沾色及要求高的品種,掛布桿間距可無級調整:100mm、200mm(或視機型而定)、300mm、400mm等;
5、掛布桿可取下進行清潔保養,掛布桿硅膠條可在蒸箱外輕松更換,快速裝入生產;確保了產品質量、減輕了機修勞動強度;
6、掛布桿自轉為獨立傳動,可無級調速,有效的控制了布邊卷邊帶來的發色不充分、沾色及裁剪浪費等弊病;
7、蒸箱內上下左右全方位、大塊面雙層隔層防水設計,讓蒸汽循環到位、又絕對防范了任何細小水花濺出影響布面或布邊的可能性;
8、數字化:全機蒸汽用量、蒸箱頂板溫度、蒸箱內溫度自動控制,工藝車速、產量等均為數字化顯示,一目了然;一鍵化:全機蒸汽用量、運行停2一鍵完成,讓操作工按工藝、按規矩生產重演;
9、真正超越了傳統蒸化機,規避了傳統蒸化機的弊病,完美的演示了自動化、工藝化、規范化、人性化的印花后蒸化工藝生立:
本機針對數碼印花防止沾色的措施(靚點):
1、織物從進入蒸箱開始到出蒸箱的蒸化過程中,印花正面無接觸,、
2、織物掛環90%以上品種不需要蒸汽吹環;
3、掛布的第一個環完成,此時印花正面的間距為900mm,絕無沾色的可能
4、后續掛環間距可選擇100mm、200mm,根據花型、織物品種的不同自由選擇;
5、掛布輥自傳系統單獨電機傳動,轉速根據生產工藝要求可任意調節,保證織物不卷邊、起皺而沾色
機器主要指標
1、幅寬:1800mm~4000mm;
2、掛環高度:0.5米~2.5米,無級可調;
3、容布量:掛環2.5米為(+100米/箱):
150米、250米、350米、450米、至550米(5個中段 活性·酸性工藝服務);
掛環2米為(+80米/箱)此設計為小批量數碼印花服務:
(60米)120米,(100米)200米,(140米)280米,(180米)360米(4個中段,括號內為掛布桿間距200mm的容布量);
4、車速:5m/min~50m/min;
5、適應工藝:酸性染料印花蒸化:101~105℃;5、活性染料印花蒸化:101~105℃;分散染料印花蒸化:170~185℃;蒸箱內溫度控制精度≤1℃;
6、適應印花方式:數碼印花織物、常規印花織物;
7、適應織物品種:針織印花布、梭織印花布;
8、進出布方式:前進前出;單層單幅,或單層雙幅;前進后出;單層單幅,或單層雙幅;
9、全機總蒸汽流量自動控制及顯示;
10、全機蒸箱頂板溫度顯示;
11、全機所有防滴水加熱蒸汽全部回收利用;
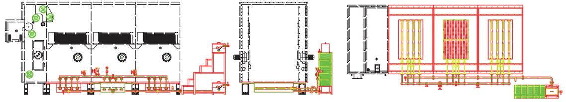
頂板及流量示意圖
倍發公司推薦的新款長環蒸化機,源自于客戶的多種工藝要求;在設計中,蒸化機的各種細節都作了認真地考慮!尤其著重于:
★既能滿足常規印花織物大批量生產、又能保證特別精細印花,敏感色印花織物、以及數碼印花織物蒸化的高要求;
★降低蒸汽耗量,數字化,可調節,廣范適應生產;
★根據溫度的細微變化均勻及時的給濕響應,提高織物的得色量和色彩的明亮度;
★蒸化機箱內恒定的工作溫度;
★適應新型數碼印花技術的進出布系統;
★防止產生印跡和擦布的連續輸送系統;
★簡化操作,數字化、一鍵化管理生產:
★極大減少了機器的維保工作量,和易損失的開支:
★詳見本機的9大特點與優勢;
給濕及給水示意圖
蒸汽耗量降低30%~40%;水耗量降低80%:
從2012年起,Supe Humidifier技術就在倍發公司蒸化機上得到了成功和廣泛的應用;這是長環蒸化機加工領域的一大里程碑;
蒸汽通過狹縫形成高速氣流在負壓腔內產生負壓,將水從管道吸出,在混合腔內和蒸汽完全混合;絕無噴頭堵塞現象、大幅降低水的用量;可在不停機狀態下進行拆卸、裝配;
倍發公司專利Patent of Beifa Company:ZL 201620520309.8
進布、出布箱體:采用中部進出布方式設計,最大的減小喂布張力,方便針織物、彈性織物和精細織物的喂入和輸出,進布、出布裝置中采用加熱和排風裝置,防止蒸汽外溢和滴水;
喂布輥采用硅膠條增加摩擦方式,織物在成環過程中與印花面無接觸;過熱蒸汽成環噴嘴可以防止織物成環過程中形成水滴,增加了布面濕度,使織物成環穩定,并能達到消除靜電功能;
中間箱體:雙層防水設計,積木式箱體結構,若干個中間箱體(由容布量決定數量);
每個中間箱體共2套 Super Humidifier 噴嘴裝進行自動補濕,并且單獨控制,電子溫度控制系統根據箱內溫度的每次波動進行自動調節,控制精度達±1℃;蒸箱內溫度的任何細微變化都會觸發氣動Y型閥,將化水加入到蒸汽循環系統;
每個中間箱體包含有高溫加熱系統,適應分散染料的發色以及涂料印花的附著;此高溫加熱系統同時可用于低溫工藝生產時冷機狀態下快速升溫,縮短生產準備時間:
鏈條連續運行平穩無沖擊,織物成環同樣是連續的,掛布桿平穩運行和平穩轉動是防止織物相互摩擦的兩大元素;特別適用于新型數碼印花技術,

掛布桿間距的調整:蒸化機標準的掛布桿間距為100mm,織物在成環的過程中難免有相互摩擦的情況;對于傳統印花織物(平網印花、園網印花)或顏色不敏感的印花織物,這種相互摩擦不會產生沾色;而對于新型數碼印花織物或特別精細的印花織物,這種相互摩擦就會和常規蒸化機一樣難免產生沾色,造成蒸化弊病,所以有了掛布桿間距的調整技術,即可將蒸箱內的掛布桿數量減半,使得掛布桿間距變成200mm,從而對新型數碼印花織物或特別精細的印花織物的沾色問題徹底消除!
掛布桿間距的調整無須增加額外的成本,前提是機器須處于冷車狀態,將里面的掛布桿拿出一半、控制盒上選擇旋鈕轉至對應間距、觸摸屏上調整容布量、蒸化時間等即可;全部用時約10分鐘!
同樣的,要恢復至標準掛布桿間距,將拿出的掛布桿加入蒸箱內、控制盒上選擇旋鈕轉至對應間距、觸摸屏上調整容布量、蒸化時間等即可;用時約10分鐘也可完成!
飽和蒸汽的產生方式:蒸汽通入安排在蒸箱底部若干只(由容布量決定數量)水箱中的汽水混合器來燒水
倍發公司專利:ZL201720580984.4
汽水混合器位于水面以下,蒸汽由噴嘴噴出,產生高速氣流,在混合腔內形成負壓,混合器外面的水隨混合腔4個進水孔被吸入,與高速蒸汽流匯合,由雙層噴汽管從水面以下噴出,從而極大提高了蒸汽濕度;
蒸汽濕度的大小由蒸汽壓力決定;蒸汽壓力越高,噴嘴流速越快、蒸汽和水的混合程度越充分、蒸汽濕度越高;反之蒸汽壓力降低,噴嘴流速就減慢、蒸汽和水的混合程度降低、蒸汽濕度就減少;
工藝適應性部分:
1、分散工藝:本機配備2臺天然氣加熱爐,前面一臺給進布成環箱體及2個中段箱體加熱、后面一臺給2個中段箱體及出布箱體加熱;保證蒸箱內前后溫度穩定一致;溫差極小,工藝溫度土1℃,獨有的成環噴汽加濕使發色更為鮮艷;
2、活性工藝:在分散工藝溫度恒定的配置基礎上,快速升溫至102℃左右的活性工藝時,獨特的飽和蒸汽發生器開始發揮其含濕量最大的特點,含濕量最大的蒸汽以最近最快的方式通過循環風機均勻的輸入蒸箱內,使蒸箱內的織物充分吸濕,當然同時放熱,在放熱過程中,蒸箱內溫度上升,這時蒸箱內多個測溫點同時啟動加濕裝置,超細而大量的將汽霧在循環風機作用下一起補充至蒸箱內,既平衡了設定的工藝溫度又恒定了蒸箱內的較大濕度;使布面發色充分,花型鮮艷而飽滿。
3、雕印工藝:有了恒定的濕度、有了穩定的溫度,通過獨特的機械設計及不斷改進,倍發蒸化機突破了雕印工藝只有國外蒸化機才能穩定加工的瓶頸,真正做到了不管是單幅還是雙幅加工,雕出的花型:棱角清晰、花型飽滿、色彩逼真、立體感強;實踐證明,從工藝的穩定性及質量的恒定性上,也達到甚至超過了國外進口蒸化機。
